
창고 공간의 핵심, 지게차 직각적재통로폭이란 무엇인가요?

📌 핵심 요약
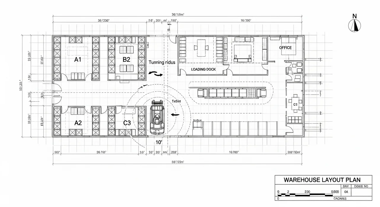
지게차가 팰릿을 싣고 90도로 회전하여 적재할 수 있는 최소한의 폭을 의미합니다.
창고 설계 시 이 폭을 정확히 계산해야 공간 낭비를 줄이고 작업 안전성을 확보할 수 있어요. 지게차의 최소 회전 반경(Wa)과 팰릿의 길이(L) 등 다양한 제원이 계산의 핵심 요소가 됩니다.
창고를 처음 설계하거나 새로운 지게차를 도입할 때 가장 먼저 맞닥뜨리는 고민이 바로 통로폭 설정이죠? 통로가 너무 넓으면 값비싼 창고 임대료 대비 적재 효율이 떨어지고, 반대로 너무 좁으면 지게차가 회전하지 못해 작업이 불가능해지거나 랙(Rack)을 들이받는 사고가 발생할 수 있어요.
실제로 많은 물류 현장에서 지게차 제원표에 적힌 최소 회전 반경만 믿고 통로를 설계했다가, 실제 팰릿을 적재한 상태에서의 회전 반경을 고려하지 못해 낭패를 보는 경우가 많습니다. 오늘은 이러한 실수를 방지하기 위해 지게차 직각적재통로폭 계산기 사용법과 정확한 계산 공식을 아주 쉽게 설명해 드릴게요.
지게차 종류별 표준 통로폭 비교 및 특징

지게차는 구동 방식과 형태에 따라 필요한 최소 통로폭이 크게 달라집니다. 일반적으로 우리가 흔히 보는 앉아서 타는 좌식 지게차(Counterbalanced)는 큰 힘을 쓰지만 회전 반경이 넓고, 서서 타는 입식 지게차(Reach Truck)는 좁은 통로에 특화되어 있죠.
위 표의 수치는 대략적인 표준이며, 실제로는 사용하시는 팰릿의 크기(가로x세로)와 지게차의 상세 모델명에 따라 몇십 센티미터의 차이가 발생합니다. 이 미세한 차이가 창고의 랙 한 줄을 더 설치할 수 있느냐 없느냐를 결정짓게 되죠.
직각적재통로폭(AST) 계산 공식 완벽 이해

지게차 제조사의 카탈로그를 보면 AST(Aisle Width for Right Angle Stacking)라는 용어가 등장합니다. 이를 수동으로 계산할 때는 아래와 같은 공식을 사용합니다.
"AST = Wa + x + L + C"
— 물류 설비 표준 계산식
각 기호가 의미하는 바는 다음과 같아요. Wa는 지게차의 최소 회전 반경, x는 앞바퀴 중심에서 포크 전면까지의 거리, L은 적재할 팰릿의 길이, 그리고 C는 안전을 위한 여유 간격입니다.
💡 꼭 알아두세요
안전 여유 간격(C)은 보통 200mm 정도를 권장합니다. 숙련된 운전자라면 더 좁은 공간에서도 운행이 가능하지만, 초보자나 빠른 물류 회전율을 고려한다면 200mm 이상의 여유를 두는 것이 사고 예방에 필수적입니다.
지게차 직각적재통로폭 계산기 사용 방법

복잡한 공식 대신 웹에서 제공되는 전용 계산기를 사용하면 단 10초 만에 결과를 얻을 수 있습니다. 아래 단계를 따라해 보세요.
계산기 접속
지게차 통로폭 계산기 페이지(forklift-aisle-width.vehiclecalc.com)에 접속합니다.
지게차 제원 입력
카탈로그에 적힌 최소 회전 반경(Wa)과 전면 오버행(x) 수치를 mm 단위로 입력합니다.
팰릿 규격 및 여유값 설정
사용 중인 팰릿의 길이와 원하는 안전 여유폭(보통 200)을 입력한 뒤 계산하기를 누릅니다.
이 도구를 활용하면 수작업 계산 시 발생할 수 있는 오차를 줄일 수 있고, 다양한 지게차 모델을 비교해 보기에 매우 편리합니다.
입식 vs 좌식 지게차: 우리 창고엔 어떤 것이 유리할까?

지게차 선택은 창고의 통로폭을 결정하는 가장 큰 변수입니다. 두 방식의 차이를 정확히 알아야 불필요한 공간 낭비를 막을 수 있습니다.
🅰️ 좌식 (Counterbalance)
장점: 빠른 주행 속도, 안정적인 중량물 적재. 단점: 넓은 통로폭 필요(최소 3.5m 이상). 야외 작업 병행 시 추천합니다.
🅱️ 입식 (Reach Truck)
장점: 좁은 통로(약 2.8m)에서 회전 가능. 단점: 바닥 수평도가 중요하며 좌식보다 주행 속도가 느림. 고밀도 실내 창고에 적합합니다.
통로폭을 1m만 줄여도 창고 전체로 보면 수십 평의 적재 공간이 추가로 확보됩니다. 따라서 신규 설계 시에는 입식 지게차 도입을 우선적으로 검토하는 것이 경제적입니다.
창고 레이아웃 설계 시 주의사항 및 체크리스트

계산기로 통로폭을 구했더라도 실제 현장에는 여러 변수가 존재합니다. 설계 전 반드시 확인해야 할 체크리스트를 정리해 보았습니다.
📋 창고 설계 전 필수 체크리스트
☑ 랙 기둥 보호대(포스트 가드)가 차지하는 폭 포함 여부
☑ 보행자 통로 별도 확보 또는 교차 구역 안전 표시
☑ 지면의 요철이나 경사로 유무 (회전 반경에 영향)
☑ 최대 높이 적재 시 지게차의 흔들림을 고려한 여유폭
⚠️ 주의사항
이론적인 최소 폭으로만 설계하면 작업 효율이 급격히 떨어집니다. 지게차가 회전할 때마다 수차례 전후진을 반복해야 한다면 인건비 손실이 더 큽니다. 계산된 수치에서 최소 10%의 운영 여유를 두는 것을 권장합니다.
자주 묻는 질문
지게차 카탈로그에서 Wa와 x 값을 찾을 수 없어요.
대부분의 제조사 카탈로그 뒷면의 '제원표(Specifications)' 항목에 명시되어 있습니다. 만약 명확히 표시되지 않았다면 제조사 대리점에 '직각적재통로폭(AST)' 데이터를 요청하시면 정확한 값을 받을 수 있습니다.
표준 팰릿(1100x1100)을 쓸 때 통로폭은 보통 얼마로 하나요?
입식 지게차 기준으로는 2,800mm ~ 3,000mm가 가장 일반적이며, 좌식 지게차 기준으로는 4,000mm ~ 4,200mm를 확보하는 것이 안전합니다. 다만 지게차 용량(톤수)이 커지면 폭도 넓어져야 합니다.
통로폭이 너무 좁아 지게차가 못 들어가면 어떻게 하나요?
기존 랙을 옮기기 어렵다면 회전 반경이 짧은 특수 모델로 교체하거나, 포크가 좌우로 회전하는 3방향 지게차(VNA) 도입을 고려해야 합니다. 또는 무인 운반차(AGV) 시스템으로 전환하여 통로폭을 획기적으로 줄이는 방법도 있습니다.
참고자료 및 링크
- 한국산업안전보건공단 - 지게차 안전작업 가이드 지게차 운행 안전 기준 및 작업장 통로 설치 규정을 확인할 수 있습니다.
- 지게차 직각적재통로폭 온라인 계산기 지게차 제원과 팰릿 크기를 입력하여 즉시 통로폭을 계산해주는 도구입니다.


